物件コード:A12-0731-504 物件詳細


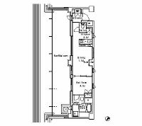
間取1
写真1

★★★物件情報★★★
住所:港区赤坂6
タイプ:マンション
賃料:\190,000
共益費:
礼金:0ヶ月
敷金:2ヶ月
保証金:0ヶ月
敷引:0ヶ月
仲介手数料:1ヶ月
駐車場料金:\59,850
火災保険:
入居時期:即時
向き:北東
間取:1DK
間取詳細:洋4.3D7.5K,2.2
面積:39.39平米 ( 11.91坪 )
構造:鉄筋コンクリート
築年月:平成17年11月
階/階建:5階/6階建
総戸数:
諸費用:
取引態様:仲介
確認日:2017/10/20
次回更新日:2017/11/17
特色:給湯、シャワー、エアコン、インターホン、バストイレ別、室内洗濯場、オートロック、システムキッチン、CATV、宅配ボックス、追焚、洗面台、浴室換気乾燥機、シューズボックス、クローゼット、楽器可、SOHO可、エレベータ、ガスキッチン、独立洗面所、駐車場、礼金ゼロ
コメント:★外苑東通りから赤坂方面に…東京ミッドタウンの真後ろの立地です★
位置情報に関するご注意:現在位置情報は精査中の為、正確ではない場合があります。あくまで参考程度の情報となります。



★★★会社情報★★★
株式会社トラストホーム
メール問い合わせ(推奨)
上記リンクでうまく行かない場合は↓
メール問い合わせ
電話問い合わせ
FAX番号:03-5339-6917

物件一覧へ戻る

H29年11月3日
10時22分 更新